Księżpol

Dom na sprzedaż

Opis nieruchomości

Dom w stanie surowym zamkniętym,

zlokalizowany w spokojnej miejscowości gminnej

Księżpol





Położenie i okolica:

  • Księżpol - miejscowość gminna pełniąca funkcję lokalnego ośrodka handlowo-usługowego,

  • nieruchomość zlokalizowana w cichej i spokojnej okolicy, doskonałej dla osób szukających komfortu i łatwego dostępu do pełnej infrastruktury,

  • bezpośrednie sąsiedztwo stanowi nowa zabudowa mieszkaniowa oraz tereny zielone,

  • w niedalekiej odległości znajdują się urząd gminy, ośrodek zdrowia, szkoła, bank i punkty handlowo-usługowe,

  • nieruchomość idealna dla osób, które szukają wygodnego życia z dala od miejskiego gwaru,

  • korzystna lokalizacja zapewniająca szybką i bezproblemową komunikację, ok. 17 km od Biłgoraja, ok. 10 km od Tarnogrodu.
     

Działka:

  • powierzchnia 1600 m2,
  • działka o regularnym kształcie prostokąta i szerokości frontu ok. 27 m,

  • dostępne uzbrojenie: prąd, wodociąg, światłowód, gaz,

  • teren w całości ogrodzony,

  • powierzchnia działki daje możliwość swobodnej aranżacji przestrzeni i wygospodarowania części rekreacyjnej jak również stworzenia przydomowego ogrodu

Dom:

  • parterowy budynek mieszkalny jednorodzinny, niepodpiwniczony, z poddaszem użytkowym, w stanie surowym zamkniętym,

  • dom wybudowany według projektu Z394 pracowni Z 500, idealny dla cztero-/pięcio- osobowej rodziny,

  • nieruchomość o powierzchni użytkowej  ok 151,22 m2, na którą składają się:

    - parter: przestronny salon połączony z jadalnią, kuchnia, sypialnia z przyległą garderobą oraz wyjściem na taras, łazienka z WC, hall, wiatrołap oraz kotłownia

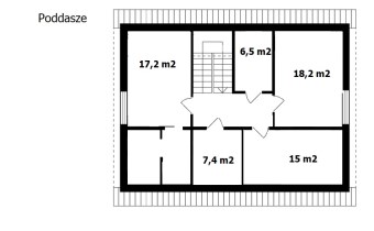
    - poddasze: 3 przestronne sypialnie, garderoba, łazienka z WC,

  • dom starannie zaprojektowany z dbałością o komfort mieszkańców, wybudowany z materiałów najwyższej jakości zapewniających trwałość i odporność na warunki atmosferyczne,

  • wewnątrz wykonana instalacja elektryczna oraz rozciągnięta kanalizacja,

  • okna PCV trzyszybowe, zapewniające dobrą izolację termiczną i akustyczną,

  • dach dwuspadowy, kryty blachodachówką, orynnowany,

  • na działce znajduje się również blaszany budynek gospodarczy



Idealna oferta dla osób szukających domu w doskonałej lokalizacji, który można wykończyć według własnych potrzeb i preferencji. To miejsce, w którym możesz stworzyć przestrzeń idealnie dopasowaną do stylu życia swojej rodziny.






Zainteresowała Cię ta nieruchomość? Zadzwoń i zapytaj o szczegóły! 
Zapraszamy na prezentację po wcześniejszym umówieniu telefonicznym.


Wynagrodzenie za pośrednictwo pokrywa Sprzedający! Oferta bez prowizji od Kupującego, dostępna wyłącznie w biurze Furmanek - Kancelaria Nieruchomości  – profesjonalna obsługa rynku nieruchomości - region biłgorajski, Roztocze, Lubelszczyzna, Podkarpacie


 

Nota prawna

Opis oferty zawarty na stronie internetowej sporządzany jest na podstawie oględzin nieruchomości oraz informacji uzyskanych od właściciela, może podlegać aktualizacji i nie stanowi oferty określonej w art. 66 i następnych K.C.

Szczegóły oferty

Symbol oferty FUR-DS-1703
Powierzchnia 311,90 m²
Powierzchnia użytkowa 151,22 m²
Powierzchnia działki 1 600 m²
Liczba pokoi 5
Rodzaj domu jednorodzinny
Garaż blaszak
Okna PCV
Ukształtowanie działki płaska
Kształt działki prostokąt
Pokrycie dachu blachodachówka
Stan budynku do wykończenia
Ogrodzenie działki ogrodzona
Rok budowy 2019
Gaz na działce
Woda tak
Dojazd asfalt
Otoczenie zabudowa jednorodzinna
Prąd w budynku

Lokalizacja

Kalkulator kredytowy

PLN
%
Wysokość raty

Kalkulator kosztów

PLN
PLN
PLN
PLN
PLN
PLN
%
PLN
Podatek od czynności cywilno-prawnych
Taksa notarialna (opłata notarialna)
VAT od taksy notarialnej (opłaty notarialnej)
Wniosek do WKW
VAT od wniosku do WKW
Prowizja agencji nieruchomości
VAT od prowizji agencji nieruchomości
Wypisy aktu notarialnego - około
RAZEM (cena + opłaty)

Napisz do nas

Proszę wypełnić to pole
Proszę wypełnić to pole
Proszę wypełnić to pole
Proszę wypełnić to pole
Trwa wysyłanie...

Ta strona wykorzystuje pliki cookies w celach statystycznych oraz w celu dostosowania naszych serwisów do indywidualnych potrzeb klientów. Zmiany ustawień dotyczących plików cookie można dokonać w dowolnej chwili modyfikując ustawienia przeglądarki. Korzystanie z tej strony bez zmian ustawień dotyczących cookies oznacza, że będą one zapisane w pamięci urządzenia.

rozumiem